Tanto hablarles de concursos y del Madrid Contemporáneo y no hemos dicho aún nada del Palacio de Congresos de Madrid.
Ubicado frente al Santiago Bernabeu, ha sido testigo de múltiples acontecimientos en la historia reciente de la ciudad. Les copio la introducción que de él hace la Guia de Madrid del COAM (edición 2003):
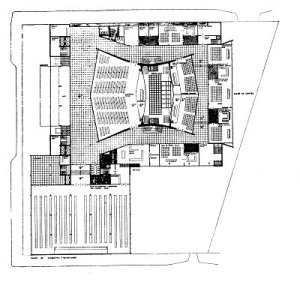
«El edificio fue el resultado de un concurso convocado a raíz de los 25 años del final de la guerra civil, al que se presentaron proyectos de gran calidad de los arquitectos más representativos del momento: Fernández Alba (segundo premio), Corrales y Molezún (tercer premio), Higueras, Fullaondo, etc. El primer premio lo obtuvo Pablo Pintado Riba, con un proyecto que se caracterizó por su gran corrección de distribución y funcionamiento, lejos de las atrevidas soluciones que quedaron relegadas a un segundo plano. (…) En 1980 se enriqueció su fachada con un gigantesco mural de Joan Miró, que recorre la parte alta del paño que se abre a General Perón. Tras el incendio sufrido en 1995 se realizó un estudio de detalle para proceder a su rehabilitación, redactado por el mismo autor del proyecto, Pintado Riba.»
Les dejo algunas imágenes tomadas el pasado día que hicimos la visita de cara al concurso DEARTE.
Por cierto, si quieren saber cómo se gestó el mural de Miró aquí les dejo un enlace al respecto



